Overview
- Updated On:
- 2020. 11. 30.
- 1 Garages
- 711.00 ft2
- Year Built:2020
Property Description
A BERUHÁZÁS 5% ÁFA-L ÉPÜL!
MINŐSÉG LUXUS ELEGANCIA!!
KEDVEZŐ FIZETÉSI KONSTRUKCIÓ
ÜRÖMHEGY- ARANYHEGY dinamikusan fejlődő részén modern új építésű házak környezetében 1422 nm összközműves, panorámás telken épül 2 db önálló családi ház.
Családok, barátok összekötözésére a legideálisabb lehetőséget kínálja.
A tervezés során figyelembe vették a vásárlói igényeket, ezért is fektettek nagy hangsúlyt a kényelemre, a tágas élhető terekre.
Hirdetésben szereplő ingatlan
Eladási ár: 199 M. Ft
Alapterülete nettó: 170.79 nm
Egyéb hasznos alapterület: 108.33 nm
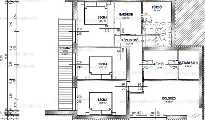
Emelet : Főbejárat az épületbe, ezen a szinten helyezkedik el a konyha ( kamra) -étkező-nappali (egy légtérben) amely a tetőterasszal kapcsolódik, továbbá ezen a szinten kerül kialakításra egy mosdó/wc.
Földszint/garázsszint: itt kerül kialakításra három hálószoba (mind három szoba terasszal és kertkapcsolattal rendelkezik), továbbá egy dolgozó szoba- fürdőszoba + háztartási helyiséggel.
A szülői hálószobához gardrób és fürdőszoba kapcsolódik.
Tetőterasz – jakuzzi kiállás előkészítése, illetve zöld tető / növények telepítése/-a lépcsőházon keresztül közelíthető meg, ahol teljes panoráma tárul elénk.
Vételár tartalmazza: fűtés, hőszivattyús rendszer, napkollektorok kiépítése telepítése, szaniterek, csaptelepek, kapcsolók, dugaljak, hideg/meleg burkolatok, elektromos zsaluzia árnyékoló, viacolorral díszített gk. beálló, elektromos kapu, riasztórendszer, füvesített kert.
Belváros megközelítése autóval 10 perc, tömegközlekedéssel 15 perc alatt érhető el.
Közelben iskola, óvoda, British Scool bevásárlási lehetőség LIDL, STOP SHOP, EURÓCENTER.
A teleken épülő ” A ” jelű ingatlan is megvásárolható.
ingatlan bemutatása:
telek: 711 nm
nettó alapterülete: 171.35 nm
egyéb hasznos alapterület: 121.09 nm / terasz, tetőterasz, garázs /
Kulcsrakész átadás: 2021 első negyedév
CSOK babváró hitel igénybe vehető.
Ingyenes hiteltanácsadássál és teljes körű jógihátérrel segítjük ügyfeleinket.
Várom megtisztelő hívását a hét mindennapján!
Komfort Zóna Ingatlaniroda
Fekete Júlia








